Church Heritage Record 626108

Skip over navigation

Core DetailsLocationBuildingInteriorChurchyardSignificanceEnvironmentForumAudit

Thorpe Hamlet: St Matthew

Name:

This is the church’s legal name as given by the Church Commissioners.

Thorpe Hamlet: St Matthew
Record Type:

A classification of the current status of the building

Church
Church code:

This is a unique identification number supplied to each church building by the Church Commissioners.

626108
Diocese:

Name of diocese in which the church building is located at the time of entry.

Norwich
Archdeaconry:

Name of archdeaconry in which the church building is located at the time of entry

Norwich
Parish:

This is the legal name of the parish as given by the Church Commissioners.

St. Matthew Thorpe

Please enter a number

Statutory Designation Information

Listed Building?

The decision to put a church building on the National Heritage List for England and assign it a listing grade is made by the Secretary of State for Culture, Media and Sport. The decision is normally based on recommendations made by Historic England, the government’s adviser on the historic environment.

This is not a Listed Building
Scheduled Monument?

The decision to schedule a feature (building, monument, archaeological remains, etc.) located within the church building’s precinct or churchyard is made by the Secretary of State for Culture, Media and Sport. The decision is based on recommendations made by Historic England, the government’s adviser on cultural heritage.

There is no Scheduled Monument within the curtilage or precinct

National Park

National Parks are areas of countryside that include villages and towns, which are protected because of their beautiful countryside, wildlife and cultural heritage. In England, National Parks are designated by Natural England, the government’s advisor on the natural environment.

The church is not in a National Park

Conservation Area

Conservation areas are places of special architectural or historic interest where it is desirable to preserve and enhance the character and appearance of such areas. Conservation Areas are designated by the Local Council.

The church is in the following Conservation Area: Thorpe Hamlet, Norwich

Please enter a number

Heritage At Risk Status

On Heritage At Risk Register?

The Heritage at Risk programme is run and managed by Historic England, the government’s advisor on cultural heritage. It aims to protect and manage the historic environment, so that the number of ‘at risk’ historic places and sites across England are reduced.

This church is not on the Heritage at Risk Register
 **************

Approximate Date

Approximate Date:

Selecting a single date for the construction of a church building can sometimes be very difficult as most CoE buildings have seen many phases of development over time. The CHR allows you to record a time period rather than a specific date.

The CHR records the time period for the building’s predominant fabric as opposed to the date of the earliest fabric or the church’s foundation date.

Modern

Exterior Image

626108_ThorpeHamlet_StMatthew_Norwich_CHRexterior
Caption:

603242 

626108_ThorpeHamlet_StMatthew_Norwich_CHRexterior
Description:

It seems to be the wrong photograph. Provided coordinates come up with another church on geograph.org.uk

Year / Date:

2011, April 06

15/02/2016
Copyright:

Keltek Trust

Matthew McDade
Originator:

Keltek Trust

Matthew McDade

Summary Description

Missing help text - to be added by an administrator
Work in progress - can you help?

Visiting and Facilities

Missing help text - to be added by an administrator
The church is open for worship.
Church open regularly Visitor parking nearby Toilets nearby or inside the church On a footpath, trail or cycle route Wheelchair accessible Local shop(s) or amenities nearby Stained Glass Staithe nearby
 **************

Church Website

Church Website:

www.holytrinitylyonsdown.org.uk

http://www.stmatthewschurch.org.uk

Sources and Further Information

Missing help text - to be added by an administrator
Matthew McDade (15/02/2016) 626108_ThorpeHamlet_StMatthew_Norwich_CHRexterior [Digital Archive/Graphic material]
626108_ThorpeHamlet_StMatthew_Norwich_CHRexterior
Matthew McDade (15/02/2016) 626108_ThorpeHamlet_StMatthew_Norwich_CHRinterior [Digital Archive/Graphic material]
626108_ThorpeHamlet_StMatthew_Norwich_CHRinterior
Christopher Codling () 626108_Norwich_ThorpeHamlet_StMatthew_Norwich_CHRplan [Digital Archive/Graphic material]
626108_Norwich_ThorpeHamlet_StMatthew_Norwich_CHRplan
Church of England (2021) A Church Near You https://www.achurchnearyou.com/church/906/ [Digital Archive/Index]
View information on worship and access at this church
ICBS (1817-1989) Incorporated Church Building Society Archive https://images.lambethpalacelibrary.org.uk/luna/servlet/detail/LPLIBLPL~34~34~88923~114064 [Archive/Graphic material]

Groundplan

ICBS File Number - 04032

Coverage - 1848-1851

Created by BROWN, John: b. 1805 - d. 1876 of Norwich and London

Church Buildings Council (2019) Church Bells 2 Bells [Archive/Index]
2 Bells

If you notice any errors with the below outlines of your connected churchyards, please email heritageonline@churchofengland.org with the corrections needed.

This could include information on new churchyards, edits to the boundaries shown, or different land characteristics. 

We are working on adding the consecrated land found within local authority cemeteries, and in time, this data will be shown on the map.

Grid Reference: TG 243 088

To zoom into an area hold the SHIFT key down then click and drag a rectangle.

Administrative Area

County:

The administrative area within which the church is located.

Norfolk County

Location and Setting

This field describes the setting of the church building, i.e. the surroundings in which the church building is experienced, and whether or not it makes a positive or negative contribution to the significance of the building.

Thorpe Hamlet lies about half a mile east of the centre of Norwich, on the far side of the River Wensum. The village has now been absorbed as a suburb of the city, whose chief railway station has taker the name Thorpe. 

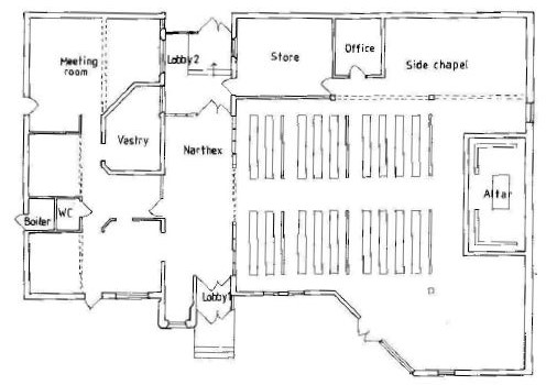
Church Plan

626108_Norwich_ThorpeHamlet_StMatthew_Norwich_CHRplan
Caption:
Missing help text - to be added by an administrator
626108_Norwich_ThorpeHamlet_StMatthew_Norwich_CHRplan
Description:
Missing help text - to be added by an administrator
Year / Date:
Missing help text - to be added by an administrator
Copyright:
Missing help text - to be added by an administrator
Originator:
Missing help text - to be added by an administrator
Christopher Codling

Ground Plan Description and Dimensions

Ground Plan

Provide as written description of the ground plan of the church building and well as its dimensions.

Work in progress - can you help?

Dimensions

Missing help text - to be added by an administrator
Work in progress - can you help?

Footprint of Church buildings (m2):

Small (<199m2)

Medium (200-599m2)

Large (600m-999m2)

Very Large (>1000m2)

Work in progress - can you help?

Description of Archaeology and History

This field aims to record the archaeological potential of the wider area around the building and churchyard, as well as the history of site.

Work in progress - can you help?

Exterior Description

This field aims to record a written description of the exterior of the church building and the churchyard.

Work in progress - can you help?

Architects, Artists and Associated People/Organisations

Missing help text - to be added by an administrator
Who:
C Codling
Role:
Architect
From:
To:
Contribution:
Who:
Peter Codling Architects
Role:
Architect / Surveyor ICM55
From:
To:
Contribution:
Who:
Peter Codling Architects
Role:
Architect / Surveyor ICM55
From:
To:
Contribution:

Building Fabric and Features

This field is an index of the building and its major components

Work in progress - can you help?

Building Materials

This field is an index of the building’s material composition

Work in progress - can you help?

Interior Image

626108_ThorpeHamlet_StMatthew_Norwich_CHRinterior
Caption:
Missing help text - to be added by an administrator
626108_ThorpeHamlet_StMatthew_Norwich_CHRinterior
Description:
Missing help text - to be added by an administrator
Year / Date:
Missing help text - to be added by an administrator
15/02/2016
Copyright:
Missing help text - to be added by an administrator
Matthew McDade
Originator:
Missing help text - to be added by an administrator
Matthew McDade

Interior Description

This field aims to record a written description of the interior of the church building.

Work in progress - can you help?

Internal Fixtures and Fittings

This field is an index of the building’s internal, architectural components. This includes its internal spaces and those areas’ fixtures and fittings (building components which are securely fixed to the church or cathedral).

Skip Navigation Links.
Collapse Internal Fixtures and FittingsInternal Fixtures and Fittings
BELL (1 of 2)
BELL (Disused)

Portable Furnishings and Artworks

This field is an index of the building’s movable, non-fixed furnishings and artworks.

Work in progress - can you help?

If you notice any errors with the below outlines of your connected churchyards, please email heritageonline@churchofengland.org with the corrections needed.

This could include information on new churchyards, edits to the boundaries shown, or different land characteristics. 

We are working on adding the consecrated land found within local authority cemeteries, and in time, this data will be shown on the map.

Grid Reference: TG 243 088

To zoom into an area hold the SHIFT key down then click and drag a rectangle.

Ecology

This field aims to record a description of the ecology of the churchyard and surrounding setting.

Work in progress - can you help?

Ecological Designations

Missing help text - to be added by an administrator

The everyday wildlife of burial grounds means much to those who visit and cherish them but many burial grounds are so rich in wildlife that they should be designated and specially protected. Few have the legal protection of a Site of Special Scientific Interest (SSSI) or, in the case of local authority owned cemeteries, Local Nature Reserve. This makes it even more important that they are cared for and protected by the people looking after them.

Many have a non-statutory designation as a recognition of their importance. These non-statutory designations have a variety of names in different regions including Local Wildlife Site, County Wildlife Site, Site of Importance for Nature Conservation or Site of Nature Conservation Importance (Local Wildlife Site is the most common name). Their selection is based on records of the most important, distinctive and threatened species and habitats within a national, regional and local context. This makes them some of our most valuable wildlife areas.

For example, many burial grounds which are designated as Local Wildlife Sites contain species-rich meadow, rich in wildflowers, native grasses and grassland fungi managed by only occasional mowing plus raking. When this is the case, many animals may be present too, insects, birds, amphibians, reptiles and mammals. This type of grassland was once widespread and has been almost entirely lost from the UK with approximately 3% remaining, so burial grounds with species-rich meadow managed in this way are extremely important for wildlife.

These designations should be considered when planning management or change.

If you think that this or any other burial ground should be designated please contact Caring for God’s Acre (info@cfga.org.uk) to discuss. Many eligible sites have not yet received a designation and can be surveyed and then submitted for consideration.

There are no SSSIs within the curtilage of this Church.

There are no Local nature reserves within the curtilage of this Church.

There are no Local Wildlife sites within the curtilage of this Church.

Evidence of the Presence of Bats

This field aims to record any evidence of the presence of bats in the church building or churchyard.

The church has no evidence of bats

Burial and War Grave Information

This field records basic information about the presence of a churchyard and its use as a burial ground.

The church/building is not consecrated.
Missing help text - to be added by an administrator
The churchyard has not been used for burial
Missing help text - to be added by an administrator
The churchyard is not used for burial.
Missing help text - to be added by an administrator
The churchyard is not closed for burial.
Missing help text - to be added by an administrator
The churchyard does not have war graves.

National Heritage List for England Designations

Missing help text - to be added by an administrator

There are no Scheduled Monuments within the curtilage of this Church.

Designation TypeNameGrade  
Listed Building Thorpe Hamlet War Memorial II View more

Ancient, Veteran & Notable Trees

Missing help text - to be added by an administrator

Churchyards are home to fantastic trees, in particular ancient and veteran trees which can be the oldest indication of a sacred space and be features of extraordinary individuality. The UK holds a globally important population of ancient and veteran yew trees of which three-quarters are found in the churchyards of England and Wales.

There are more than 1,000 ancient and veteran yews aged at least 500 years in these churchyards.

To put this in context, the only other part of western Europe with a known significant yew population is Normandy in northern France, where more than 100 ancient or veteran churchyard yews have been recorded.

Burial grounds may contain veteran and ancient trees of other species such as sweet chestnut or small-leaved lime which, whilst maybe not so old as the yews, are still important for wildlife and may be home to many other species.

Specialist advice is needed when managing these wonderful trees. For more information or to seek advice please contact Caring for God’s Acre, The Ancient Yew Group and The Woodland Trust.

If you know of an ancient or veteran tree in a burial ground that is not listed here please contact Caring for God’s Acre.

There are currently no Ancient, Veteran or Notable trees connected to this Church

Churchyard Structures

This field is an index of the churchyard’s components.

Skip Navigation Links.
Collapse Churchyard StructuresChurchyard Structures
WAR MEMORIAL

Significance

Setting Significance Level:

Significance is the whole set of reasons why people value a church, whether as a place for worship and mission, as an historic building that is part of the national heritage, as a focus for the local community, as a familiar landmark or for any other reasons.

Work in progress - can you help?
Setting Significance Description:
Missing help text - to be added by an administrator
Work in progress - can you help?
Fabric Significance Level:
Missing help text - to be added by an administrator
Work in progress - can you help?
Fabric Significance Description:
Missing help text - to be added by an administrator
Work in progress - can you help?
Interior Significance Level:
Missing help text - to be added by an administrator
Work in progress - can you help?
Interior Significance Description:
Missing help text - to be added by an administrator
Work in progress - can you help?
Community Significance Level:
Missing help text - to be added by an administrator
Work in progress - can you help?
Community Significance Description:
Missing help text - to be added by an administrator
Work in progress - can you help?

Church Renewables

Missing help text - to be added by an administrator
Open the map of church renewable installations
Solar PV Panels:

This information forms part of the Shrinking the Footprint project.

No
Solar Thermal Panels:
Missing help text - to be added by an administrator
No
Bio Mass:
Missing help text - to be added by an administrator
No
Air Source Heat Pump:
Missing help text - to be added by an administrator
No
Ground Source Heat Pump:
Missing help text - to be added by an administrator
No
Wind Turbine:
Missing help text - to be added by an administrator
No
EV Car Charging:
Missing help text - to be added by an administrator
Unknown

Species Summary

Missing help text - to be added by an administrator

All of the species listed below have been recorded in close proximity to the Church . A few species which are particularly threatened and affected by disturbance may not be listed here because their exact location cannot be shared.

NOTE: Be aware that this dataset is growing, and the species totals may change once the National Biodiversity Network has added further records. Species may be present but not recorded and still await discovery.

CategoryTotal species recorded to date
TOTAL NUMBER OF SPECIES RECORDED 0
Total number of animal species 0
Total number of plant species 0
Total number of mammal species 0
Total number of birds 0
Total number of amphibian and reptile species 0
Total number of invertebrate species 0
Total number of fungi species 0
Total number of mosses and liverworts (bryophytes) 0
Total number of ferns 0
Total number of flowering plants 0
Total number of Gymnosperm and Ginkgo 0

Caring for God’s Acre is a conservation charity working to support groups and individuals to investigate, care for, and enjoy the wildlife and heritage treasures found within churchyards and other burial grounds. Look on their website for information and advice and please contact their staff directly. They can help you manage this churchyard for people and wildlife.

To learn more about all of the species recorded against this church, go to the Burial Ground Portal within the NBN Atlas. You can check the spread of records through the years, discovering what has been recorded and when, plus what discoveries might remain to be uncovered.

‘Seek Advice’ Species

Missing help text - to be added by an administrator

If any of the following species have been seen close to the Church, it is important to seek advice from an expert. You will need to know if they are present now, and to follow expert recommendations when planning works. All of these species have specific legal protection as a recognition of their rarity. All of them are rare or becoming increasingly endangered, so it is important to ensure that management and other works do not adversely affect them. In addition, there may be things you can do to help these special species. N.B. Swift and House Martin do not have specific legal protection but are included, as roof repair works often impact breeding swifts and house martins which is against the law.

This is not a complete list of protected species, there are many more, but these are ones that are more likely to be found. All wild birds, their nests and eggs are also protected by law, as are all bats and veteran trees. In a few cases, species are considered particularly prone to disturbance or destruction by people, so the exact location of where they were recorded is not publicly available but can be requested. These ‘blurred’ records are included here, and the accuracy is to 1km. This means that the species has been recorded in close proximity to the Church, or a maximum of 1km away from it. As these ‘blurred’ species are quite mobile, there is a strong likelihood that they can occur close to the Church. To learn about these special species, use the link provided for each species in the table below

One important species which is not included here is the Peregrine Falcon. This is protected and advice should be sought if peregrines are nesting on a church or cathedral. Peregrine records are ‘blurred’ to 10km, hence the decision not to include records here. Remember too that species not seriously threatened nationally may still be at risk in your region and be sensitive to works. You should check with local experts about this. You may also need to seek advice about invasive species, such as Japanese knotweed and aquatics colonising streams or pools, which can spread in churchyards.

N.B. If a species is not recorded this does not indicate absence. It is always good practice to survey.

No species data found for this record

Caring for God’s Acre can help and support you in looking after the biodiversity present in this special place. If you know that any of these species occur close to the Church and are not recorded here, please contact Caring for God’s Acre with details (info@cfga.org.uk).

To find out more about these and other species recorded against this Church, go to the Burial Ground Portal within the NBN Atlas.

The church was the centre of many people’s lives and remains a guide to their cares and concerns. Glimpses into those lives have often come down to us in the stories we heard as children or old photographs discovered in tattered shoe boxes. Perhaps your ancestors even made it into local legend following some fantastic event? You can choose to share those memories with others and record them for future generations on this Forum.

Tell us the story of this building through the lives of those who experienced it. Tell us why this church is important to you and your community.

Upload your photographs, share your videos, or compose your story below using a Facebook, Twitter, Google or Disqus account.

Refresh
WhoActionWhen
Oliver LackModified asset data - Modified the Location and Setting DescriptionMon 23 Jan 2023 10:01:02
Oliver LackAdded SourceMon 28 Nov 2022 13:57:30
Marleen MadindaAdded a plan of the buildingTue 17 Oct 2017 16:06:06
Marleen MadindaAdded image of the interior of the buildingWed 22 Feb 2017 12:35:16
Marleen MadindaAdded image of the exterior of the buildingTue 07 Feb 2017 15:39:31
Marleen MadindaModified asset data - Modified the Visiting and Facilities informationWed 21 Dec 2016 15:04:19
Marleen MadindaDeleted QI inspectionTue 01 Nov 2016 12:27:33
Marleen MadindaAdded QI inspectionTue 01 Nov 2016 12:27:27
Marleen MadindaCreated asset source linkTue 01 Nov 2016 12:27:27
Marleen MadindaAdded QI inspectionWed 29 Jun 2016 11:43:41
First Previous Next Last 
Page 1 of 3 (23 items)
Page size:
Site Map  | Privacy | T & C | © 2014 - 2025 Archbishops' Council  | Web site by exeGesIS SDM | Rev. 3.4.8529.22773
  • Home
  • Login
  • Register
  • Church Search
  • Site Map