CHR Source 8371

Skip over navigation

Core DetailsSource LocationRightsAssociated Churches

Core Details

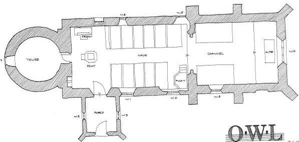
626371_Thorpe-next-Haddiscoe_StMathias_Norwich_CHRplan
Author/originator: Stuart Offord
Source type: Digital Archive (Unpublished primary digital archive)
Source sub-type: Graphic material (Pictorial, painted or drawn material such as slides, drawings, photos, plans excluding cartographic.)
Year/date of creation: Work in progress - can you help?
Title: 626371_Thorpe-next-Haddiscoe_StMathias_Norwich_CHRplan
Description: Work in progress - can you help?

Location

626371_Thorpe-next-Haddiscoe_StMathias_Norwich_CHRplan
Where can the source be accessed?: church plan.JPG
Is this a web URL?: Yes
When was the source last accessed at this location?: Tue 04 Nov 2025 02:24:08
 **************

Rights

Copyright Notes: Stuart Offord
Church codeChurchDioceseSpecific ReferenceChurch record
626371 Thorpe-next-Haddiscoe: St Mathias Norwich
Site Map  | Privacy | T & C | © 2014 - 2025 Archbishops' Council  | Web site by exeGesIS SDM | Rev. 3.4.8529.22773
  • Home
  • Login
  • Register
  • Church Search
  • Site Map